architecture
HABITATIONS CH+_38
Rénovation de deux granges en habitations à Tullins
Détails
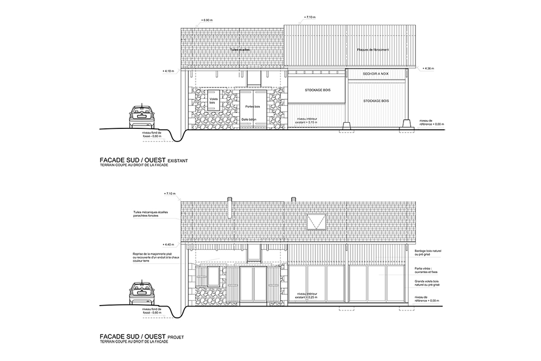
Le projet consiste en la réhabilitation de deux bâtiments existants ayant fait l’objet d’un inventaire dans le cadre du PLU de la commune de Tullins. Les bâtiments étaient utilisés pour un usage agricole (étable, séchoir à noix, et espace de stockage pour engins agricoles) et ont pour objet de devenir habitable pour deux familles de 4/5 personnes.
Maître d'ouvrage : Privé
Lieu : Tullins
Calendrier : 2017 – Chantier en cours
Missions : Mission partielle
Prix/m2 : - € TTC
Surface : 232 m2
